Loading...
Loading...
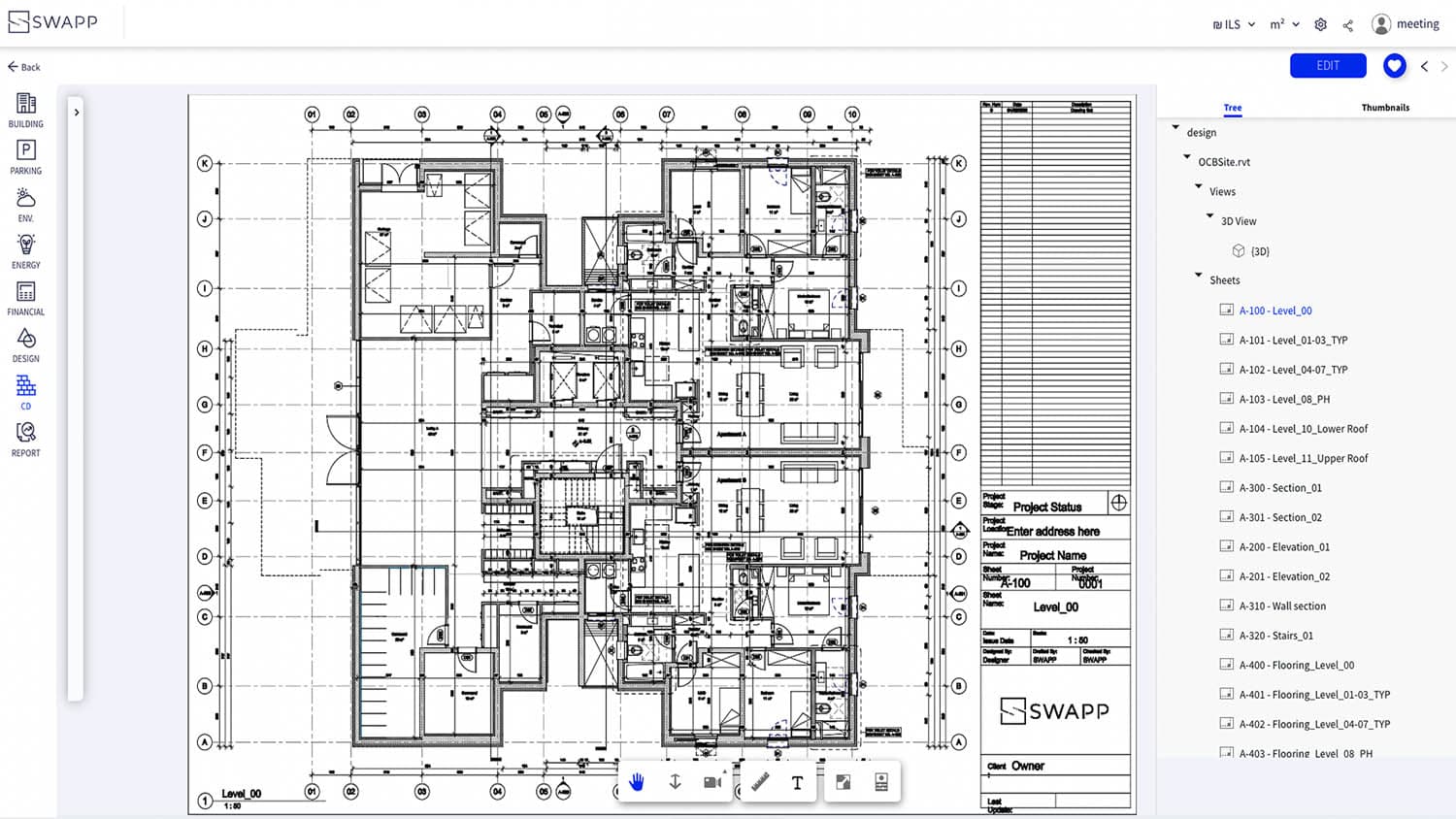
AI-powered construction documentation platform that automates architectural drawing production, reducing design phase time by generating construction documents, details, and BIM models from preliminary designs.

Primary Function
Advanced Design & ModellingSpecialization
Document GenerationAutomatically generates complete construction document sets using artificial intelligence, reducing manual drafting time by up to 75%.
Automatically adds detailed components, annotations, and specifications to Revit models based on project requirements and standards.
AI system ensures all drawings and models automatically comply with firm-specific BIM standards and building codes.
Generates complete coordinated drawing sets including plans, sections, elevations, and details with single command execution.
No Related Posts Yet
Posts that mention or use this tool will appear here.
Sign in to leave a comment and help other users discover great tools.
Machine learning system learns from past projects to replicate firm-specific design decisions and detailing preferences automatically.
